• 315,000 €

EDIFICIO A REFORMAR


  • Superficie
    47 m2
  • Parcela
    240 m2
  • Habitaciones
    3
  • Baños
    2
  • Garaje
    1
  • Terraza
    1 m2
  • Piscina
    Si

Descripción

¡SE VENDE EDIFICIO A REFORMAR EN CALA'N BLANES!

Originalmente este era un restaurante con 47 m2 construidos en planta baja, con su parcela de uso privativa vallada y con varias terrazas.

Actualmente es un local comercial sin condiciones de uso el cual se vende en su estado actual y podría adaptarse a distintos usos.

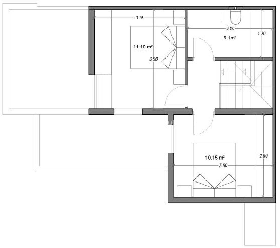
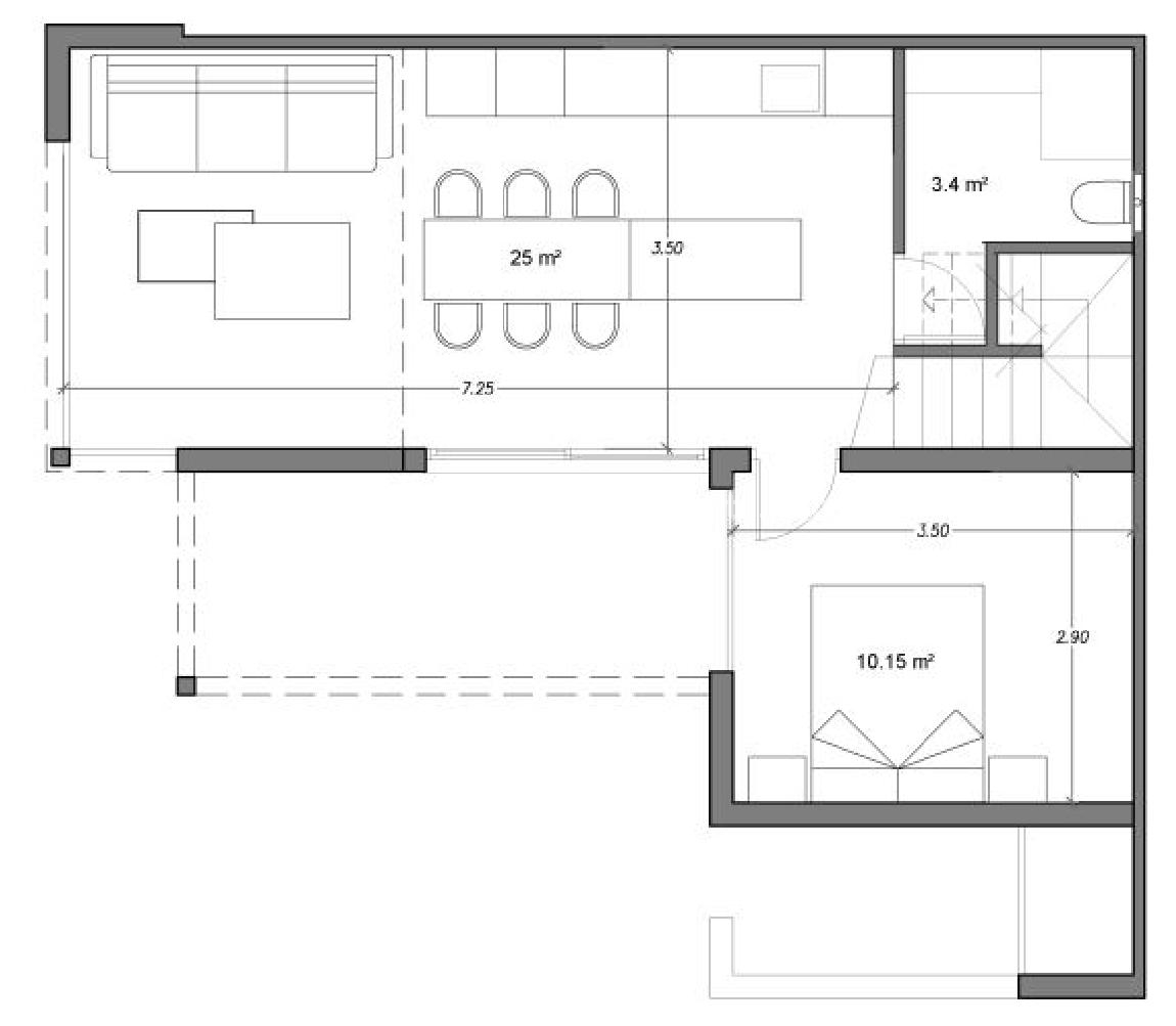
 Existe la posibilidad de 1) Reformarlo y reactivar su función comercial, o 2) Ampliarlo en una planta primera y convertirlo a vivienda unifamiliar, para la cual existe un rápido estudio de edificabilidad, resultando en las siguientes posibilidades:

Vivienda adosada en sus paredes Nordeste y Noroeste, compuesta de 47 m2 en planta baja (incluye terraza cubierta de 9 m2) y 26 m2 en planta primera (con terrazas descubiertas y/o pergolas de 10 m2 y 9 m2). Con tales dimensiones es posible crear hasta:

 3 habitaciones dobles

2 baños completos

Salón comedor con cocina integrada  

La parcela dispone de aproximadamente 240 m2 de superficie, resultando en espacio suficiente para añadir zona dedicada de aparcamiento dentro de la parcela, jardín y piscina.

Se adjuntan planos del estudio de conversión a vivienda realizado recientemente.

Precio: 315.000 €

 Para cualquier otra información y/o consulta,

¡No dude en contactar con nosotros!

Características